Beginning of new house construction
Beginning of new house construction
Hello everyone,
I am about to start my house construction in BSK 3rd stage, will be updating each stage with more details as and when possible.
Site : 30X40
Facing :West
requirements : GF : 2 car parking + 2bhk for rental
FF : Duplex
Right now I have finalized my working plan, and tomorrow will submit BBMP plan approval.
files dont move without bribes hence other then official files brbe is 4ok as confirmed by agent.
Right now in discussion with two Mestri to finalizae on among them for labour contract.
no plan for borewell digging -hence initilally would be dependence on tanker and later rain water once sump is constructed.
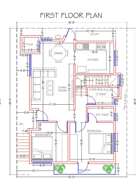
I have attached plan, window positions will be optimized after structural
I am about to start my house construction in BSK 3rd stage, will be updating each stage with more details as and when possible.
Site : 30X40
Facing :West
requirements : GF : 2 car parking + 2bhk for rental
FF : Duplex
Right now I have finalized my working plan, and tomorrow will submit BBMP plan approval.
files dont move without bribes hence other then official files brbe is 4ok as confirmed by agent.
Right now in discussion with two Mestri to finalizae on among them for labour contract.
no plan for borewell digging -hence initilally would be dependence on tanker and later rain water once sump is constructed.
I have attached plan, window positions will be optimized after structural
- Attachments
-
- Ground Floor
- GF.jpg (97.88 KiB) Viewed 12020 times
-
- First Floor
- FF.jpg (97.84 KiB) Viewed 12020 times
-
- Third Floor
- TF.jpg (45.93 KiB) Viewed 12020 times
Re: Beginning of new house construction
in my working plan i have tried my level best to keep atleast 3 ft set back all around house.
Plan : BBMP employee is helping on plan
Mestri : in discussion with Kumarswamy and madhavn two references from this portal, saw few constructions from madhavan and his rate is 32k, yet to see constrctions from Kumarswamy hopefully he will turn up on sunday for discussions and site visit. have to finalized one of among these, my site is only vacant and all other constructiuns are completed. have to see how material management needs to be done, construction would be on tight budget - hence not sure if i will be coevring all floor at once or go for first floor now and gf construction later
Plan : BBMP employee is helping on plan
Mestri : in discussion with Kumarswamy and madhavn two references from this portal, saw few constructions from madhavan and his rate is 32k, yet to see constrctions from Kumarswamy hopefully he will turn up on sunday for discussions and site visit. have to finalized one of among these, my site is only vacant and all other constructiuns are completed. have to see how material management needs to be done, construction would be on tight budget - hence not sure if i will be coevring all floor at once or go for first floor now and gf construction later
Re: Beginning of new house construction
Since i have bhumi puja on mondday i.e. 28th had to get site cleaned. Opted for a team having tractor they did good job of cleaning site in stratight three hours
Cost : tractor per load 1400 - total 3 loads and labour charge 3500 total 7500.
Cost : tractor per load 1400 - total 3 loads and labour charge 3500 total 7500.
Re: Beginning of new house construction
Applied for bescom temp connection official fees 15k , office charges 5k, material 5k awaiting approvals
- ardesarchitects
- Posts: 1080
- Joined: June 20th, 2009, 2:12 pm
Re: Beginning of new house construction
Hi kk55340kk55340 wrote: November 24th, 2022, 1:40 pm Hello everyone,
I am about to start my house construction in BSK 3rd stage, will be updating each stage with more details as and when possible.
Site : 30X40
Facing :West
requirements : GF : 2 car parking + 2bhk for rental
FF : Duplex
Right now I have finalized my working plan, and tomorrow will submit BBMP plan approval.
files dont move without bribes hence other then official files brbe is 4ok as confirmed by agent.
Right now in discussion with two Mestri to finalizae on among them for labour contract.
no plan for borewell digging -hence initilally would be dependence on tanker and later rain water once sump is constructed.
I have attached plan, window positions will be optimized after structural
Few of my observation in your floor plan design, it may may or may not match to your requirements.
Gf
1. Parking of 12' depth cannot accommodate a decent hatch back car. when you consider a car parking for a 600 sft unit its expected to be above mid income family will take it for rent.
2. Kitchen can be gallery style insead of corner counter on the south east corner, you can get more counter & storage space by doing the same.
FF
1. Utility behind the kitchen is of no use as it is only 3'6", for sink counter you need 2' and person to move around another 2' minimum. For the same reason sink counter detail is not shown in the dwg.
2. Front bedroom has balcony with nice planters shown but no window from bedroom to see the same. cross ventilation is missing in both bedrooms.
3. A small foyer with shoe rack will give better privacy and avoid shoe dust getting in to the living room directly.
Regards,
Ar.Praveen.N
Ardes Architects and Interior designers
ardesarchitects@gmail.com
www.ardesarchitects.com
https://www.instagram.com/ardesarchitects
Re: Beginning of new house construction
Thanks Praveen for your feedback, our plan has undergone multiplechanges and we have arrived at a point where we have freezed the plan

- Attachments
-
- Screenshot 2023-01-12 231811.jpg (140.53 KiB) Viewed 11405 times
Re: Beginning of new house construction
sir please provide mobile number of Mestri Kumarswamy and madhavnkk55340 wrote: November 24th, 2022, 1:52 pm in my working plan i have tried my level best to keep atleast 3 ft set back all around house.
Plan : BBMP employee is helping on plan
Mestri : in discussion with Kumarswamy and madhavn two references from this portal, saw few constructions from madhavan and his rate is 32k, yet to see constrctions from Kumarswamy hopefully he will turn up on sunday for discussions and site visit. have to finalized one of among these, my site is only vacant and all other constructiuns are completed. have to see how material management needs to be done, construction would be on tight budget - hence not sure if i will be coevring all floor at once or go for first floor now and gf construction later
Re: Beginning of new house construction
Work started 8 footings dug up so far , 3 had very hard soil which jcb couldn't dug up hence had to call compressor guy. Did not opt for borewell, bought used 1 k ltr sintex tank and getting filled up through tankers each 1000 ltr fill costing 600 , sump plastering is pending. Once sump is plastered will be able to save some money. Temp electric connection still waiting not sure the electrical guy working or not.
Re: Beginning of new house construction
kk55340 wrote: November 24th, 2022, 1:52 pm in my working plan i have tried my level best to keep atleast 3 ft set back all around house.
Sir please provide mastri Kumarswamy and madhavn mobile numbers Thanks