Please advise on my house plan

Post Reply
shree
Posts: 19
Joined: April 8th, 2012, 8:45 pm

Please advise on my house plan

Post by shree »

Hi all,

This forum is really a great place to learn about civil construction.
I am really thankful to all the forum members for creating such a wonderful discussion forum.

I have just finalised my G+1 house plan.
I have got working plan from a civil Engineer based on my family requirements.
I am looking for suggestions from this forum members.
Pls suggest if any improvements needed.

This is a north facing site. I am planning for G+1 duplex house.
I am planing for 11' cieling height throughout GF and 10' feet ceiling height for first floor.
I want to keep lintel height 7' for both GF and FF.
I am still not clear on 2 things:
1. if 7' lintel looks out of place for 11' ceiling.
2. Does 11' for GF and 10' for FF affects elevation significantly.

Pls suggest. Looking forward for inputs.
Attachments
North-GF.pdf
Ground Floor
(71.76 KiB) Downloaded 581 times
North-FF.pdf
First Floor
(52.16 KiB) Downloaded 506 times
North-SF.pdf
Second Floor
(36.57 KiB) Downloaded 524 times
Last edited by shree on July 16th, 2020, 3:49 pm, edited 1 time in total.
Visualizer
Posts: 375
Joined: June 1st, 2018, 6:24 pm

Re: Please advise on my house plan

Post by Visualizer »

1. You can increase the size of RWH sump to 10K liters given abundant rains in Bnagalore.
2. Car parking can be over the Sumps and other area you can leave unpaved for garden.
On FF you can hae a single big balcony instead of dividing in two portions. This will give you a covered car parking below.
3. I am not sure why you want 11 feet in GF visually trust me this 1 feet difference is seen only by person who constructs home and after initial 6 months you will also stop seeing it.

Uniform floor heights with easy and uniform steps is fundamental requirement of duplex house hwere you need to go up and down multiple times.
shree
Posts: 19
Joined: April 8th, 2012, 8:45 pm

Re: Please advise on my house plan

Post by shree »

Thanks Visualizer for thorough analysis and valid inputs.
1. I thought daily usage of RWH sump water may not cross 150-200 Its. This is for gardening/cleaning purposes. So, 6k would be enough for 15-20 days. So, I was just thinking anything above may lead to stale water.
2. Since my site is main road facing, I felt portico is more useful compared to balcony due to privacy reasons. So, I planned for separate car parking. Plan is to have pergola with creepers in open balcony. This is only future plan considering the cost involved :).
3. I totally agree with your point for 11 feet ceilings. After few months of construction, we will not notice most of the things which are designed only to please eyes. I planned for 11F only to accommodate false ceilings. Again to please eyes :). I don't want to have false ceiling in FF.
I have seen false ceilings designed for 10 feet ceilings, but I felt it is too low. Also, I have read it somewhere that floor height should go down for upper floors(we can see this in temples). Our Mestri had suggested the same thing 15 years back, 10 feet for GF and 9.5 feet for first floor.
Visualizer
Posts: 375
Joined: June 1st, 2018, 6:24 pm

Re: Please advise on my house plan

Post by Visualizer »

Why only gardening cleaning?

Rainwater is purest form of water purer then what you get in name of Kavery water you just need a slow sand filter for drinking water anyway with Kavery supply you will have to install a water purifier filter.

I think you can avoid false ceiling if
you prepare electrical plan in advance and place recessed light boxes in ceiling while casting RCC slab.

Even plastering of roof is not required you can go for poning that is grinding the shuttring joints in cast slab and applying POP layer. At the edge you can have a band for LED strip lights.
Just my 2 cents and what I have done

There is no reason for ceiling hight to decrease as you go up even from Vastushastra point of view.

Just that BBMP bylaws (most cities have similsr bylaws) restrict the total height to 37.5 feet (12 meters including water tank) for plots upto 40x60 size so if you are keeping 11 for 3 floors it will leave just 4.5 feet for Overhead tank and plinth and you can not have a covered staircase. With 10 feet per floor you have scope of 3 floors and 7.5 feet for OHT/ Staircase covering.

Practically your house plinth will take some 1.5 to 2 feet so meeting height limit is quite difficult for 3 floors.
shree
Posts: 19
Joined: April 8th, 2012, 8:45 pm

Re: Please advise on my house plan

Post by shree »

Thanks Visualizer.
1. I agree with your viewpoint on rainwater.
Please share me the cost involved for filter system and it's maintenance.
or If there are any agencies, pls share the contact details.

2. Ceiling height reduction: I am planning for it mainly due to practical reasons.
Since you have mentioned abt Vastu, I am sharing some refs I had come across.
But, I really don't know the authenticity of these claims.

http://architectureideas.info/2009/01/vastu-shastra-guidelines-basement-and-upper-floors/
Quoting from above website:
The ceiling height in the Upper floors should be less than in the lower floors: The Scientific Reason – For a building to look graceful and proportionate, the height of the lower floor should always be more than that of the upper floor. Otherwise, the building will look a bit unstable as though it will topple.

https://www.astrojyoti.com/vastuupperfloor.htm
Quoting from above website:
The ceiling height of the rooms on the upper floor should be less than the ceiling height of the rooms on the ground floor.

3. False ceiling: Your points are completely new for me. I didn't understand. I will research.

4. Building height: Bylaw restriction is not a concern in my case because I am going for G+1+ staircase block.
User avatar
ardesarchitects
Posts: 1080
Joined: June 20th, 2009, 2:12 pm

Re: Please advise on my house plan

Post by ardesarchitects »

Hi Shree
My few observations not just based on functionality but also aesthetics . Whenever you are planning for a home it's not just about fitting all the requirements but fitting requirements in grace and aesthetics. After all, a home is a place where we spend 60-70% of our lifetime.
1. Since you have a larger site it's easy to achieve the required size rooms, but arranging them with a minimum construction area will always add a lot of advantages .
2. The center triple height area could have been used more efficiently like an open to sky courtyard where a tree can be grown like a chettinad style home.
3. Courtyard area can give access to external garden areas to view them while you are inside the house.
4. Pooja room is long but not proportionately wide enough to accomodate min 2 people side by side. Pooja room should always have sufficient width than length
5. Small toilet is also not sufficiently wide enough. Any space should be proportionately designed. In toilets the width should be minimum 5' that helps easy movement in front of WC.
6. Though kitchen size is large enough the counter area is very less compared to the total area. This will lead to less storage
7. Window positions should be looked at both from inside and outside. When you open the window what do you see outside is very important to get a good view and ventilation
8. After having such a nice front garden area none of the windows in the living room or bedroom are positioned to see the greenery while you are relaxing on sofa or bed .
9. Giving sumps in the open area will reduce the virgin land leading to less greenery, you cannot grow a tree on sump and your concrete footprint is increased
10. Constructing sumps separate leads to extra cost because of additional sump wall areas and excavation supports . It's completely safe and cheaper to keep all the sumps together. 
11. Rain water sump capacity can be much larger as the rainwater is the best and purest form of free water.
12. Rainwater filters are very cheap and easy to maintain, it costs approx 4k per filter and water stored in the sump can be fungus or algae free for more than a year as there will be no sunlight in the sump.
13 Gym room should be more airy with good view to really enjoy the workouts, in your case just a one window is placed with out any good view outside
14. Study has the best terrace connectivity but no view from inside.

Buildings can have a better shape to bring the elevation more interesting.
Aesthetics should be considered not just by room size but views, window position, volume etc.

Regards,
Ar.Praveen.N
Ardes Architects and Interior designers
ardesarchitects@gmail.com
www.ardesarchitects.com
https://www.instagram.com/ardesarchitects
shree
Posts: 19
Joined: April 8th, 2012, 8:45 pm

Re: Please advise on my house plan

Post by shree »

Thanks praveen for detailed analysis. Lot of valuable inputs.

1. I started my planning based on courtyard houses. But, we dropped the idea due to couple of reasons.
We decided to keep it as uncluttered place with skylight. Anyday it is a cool idea to have open courtyard.
But, I didn't understand the direct access to external garden from courtyard. Can you pl elaborate.

2. Pooja room size is definitely an issue. But, making it wider reduces the size of dining area.
Now it is 9' 5" wide.
I experimented a lot with this area. But, i couldn't come up with any better placements.

3. small toilet: I hope you are mentioning abt common toilet in ground floor. This is 4' 8" wide now. Increasing the width reduces the size of adjacent guest room which is 10' wide now. I felt that 4' 8" would be sufficient because ledge wall is not needed in our case for wall mount WC due to 9" wall. This saves me 4". But, if this assumption is wrong, adjacent guest room width can be reduced to 9' 8".

4. kitchen storage is definitely an issue. We have decided to use space under staircase for storage.

5. I will reconsider window locations/sizes. Thanks again for highlighting this.
But,in Gnd floor living room, 6*6, 6*4 windows have been marked in the plan. Also, windows planned next to main door as well. Pl update if this is not sufficient or it has something to do with placement?

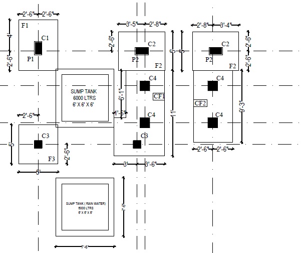
6. We couldn't go for attached sump due to footings design. We can have only 6k sump under our balcony.
We cannot even increase the depth because footing depth is 6 feet. attaching the footings plan. Pl advise if we can still fit big sump here.
Another good place for sump is car parking area. But, this comes in north west which is prohibited for sump as per vastu. I thought we can have lawn over this sump to compensate for the land loss.

7. Happy to hear about having big trees. Hope more and more architects would propose this.
I have seen many people chopping off big trees just to elevate the appearance.
We have 2 big coconut trees in our site and we will retain them :)
I have got an advice to remove them :(

8. Regarding rain water sump atorage capacity, i have some interesting questions.
Probably bigger forum may participate in that. Will post seperately.

9. Please suggest on my question in parent thread regarding ceiling height.

I loved your words on aesthetics , need to work on it :)
footings.jpg
footings.jpg (60.08 KiB) Viewed 6107 times
Post Reply

Return to “Civil Construction”