Need help in validating structural design.

Post Reply
amohit
Posts: 21
Joined: July 13th, 2010, 4:23 pm

Need help in validating structural design.

Post by amohit »

Hi,

I am in process of constructing a G+1 story house. I have engaged a contractor for full construction.
Today he told us that he will be deviating from the specifications provided to him by the structural engg w.r.t to the footing size and the size of steel rods he will use in the columns.

I need some learned person on this forum to have a look at the changes and advice if these are safe to do or not.

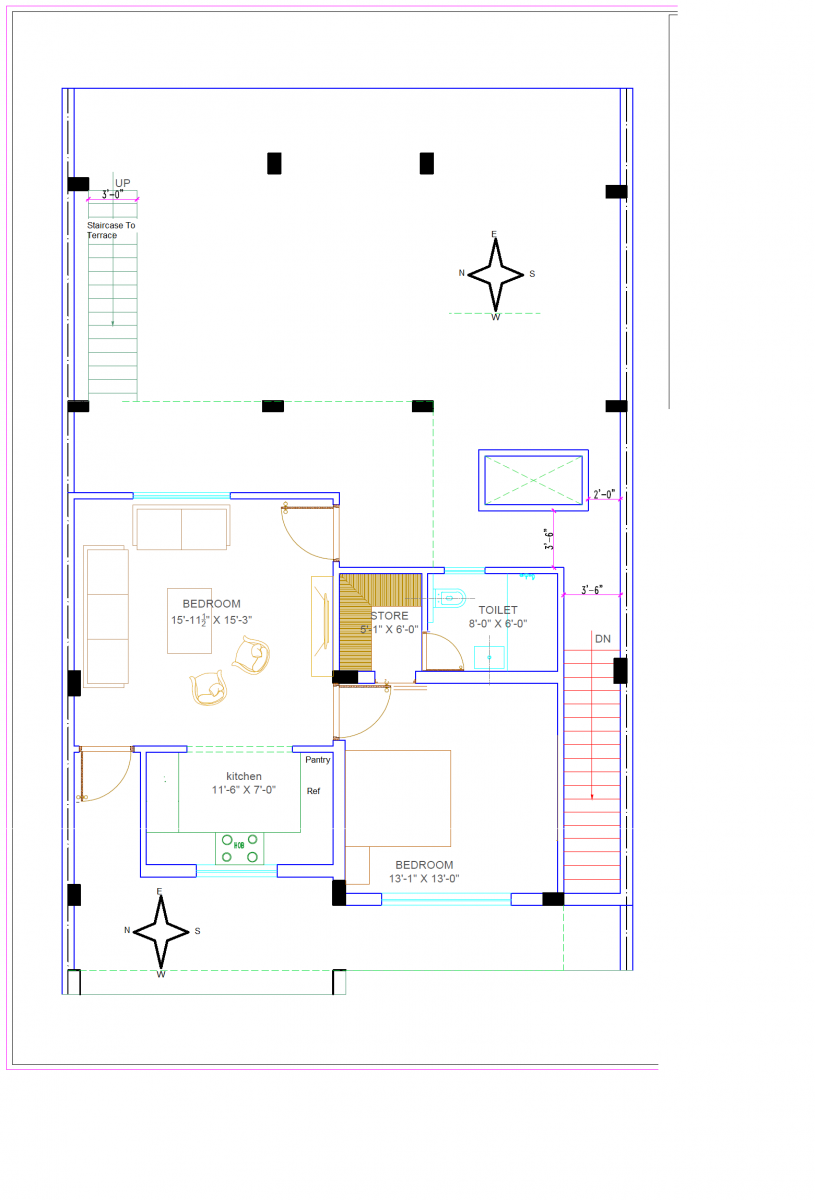
Attaching the gnd flr and first flr maps and the column specifications. All columns have 8 bars.

Appreciate your help.

Thanks,
Mohit
Attachments
Ground Floor
Ground Floor
First Floor
First Floor
Column specs
Column specs
columns structure.png (35.27 KiB) Viewed 3865 times
Visualizer
Posts: 375
Joined: June 1st, 2018, 6:24 pm

Re: Need help in validating structural design.

Post by Visualizer »

But where is the footing drawing and what is the deviation?
amohit
Posts: 21
Joined: July 13th, 2010, 4:23 pm

Re: Need help in validating structural design.

Post by amohit »

Visualizer wrote: May 10th, 2021, 6:49 pm But where is the footing drawing and what is the deviation?

Added.

Thanks for reviewing this.

Regards,
Mohit
Attachments
original column specs.png
Footing drawing.png
Footing drawing.png (73.11 KiB) Viewed 3832 times
Visualizer
Posts: 375
Joined: June 1st, 2018, 6:24 pm

Re: Need help in validating structural design.

Post by Visualizer »

But what is deviation he is taking and why ?

Footing depth thickness and Reinforcement drawings are also missing.

Also don't see tie beams in your drawing. In my opinion you should have tie beams
Post Reply

Return to “Civil Construction”