Review of plan for North facing house
Review of plan for North facing house
Hello everybody
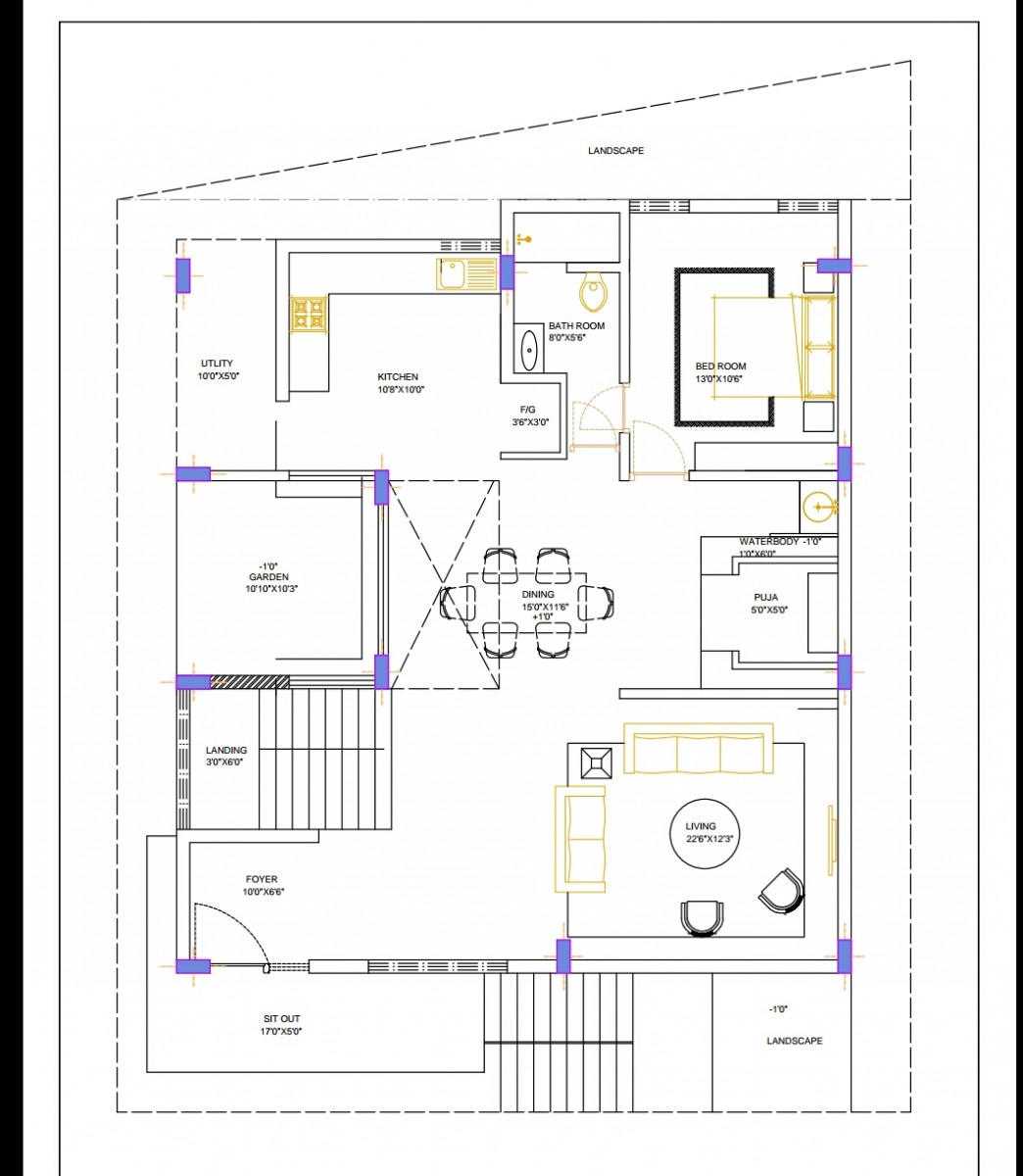
Kindly review the plan for our north facing house
its a G+3 floor plan
Regards
SC
Kindly review the plan for our north facing house
its a G+3 floor plan
Regards
SC
Last edited by sc_new on October 5th, 2016, 5:33 pm, edited 2 times in total.
Re: Review of plan for North facing house
This is third floor plan
Last edited by sc_new on October 5th, 2016, 5:33 pm, edited 1 time in total.
-
Kiran Kumar K
- Posts: 134
- Joined: May 27th, 2013, 8:57 pm
Re: Review of plan for North facing house
Good planning
Re: Review of plan for North facing house
Hi...Sir
There is lot of scope for improvsing the space arrangement in this floor plans.it would be very difficult to put down all the points even you can utilise that odd corner space in someway in to the house in vaastu limits.
regards
lakshminarayanaswamy
There is lot of scope for improvsing the space arrangement in this floor plans.it would be very difficult to put down all the points even you can utilise that odd corner space in someway in to the house in vaastu limits.
regards
lakshminarayanaswamy
Re: Review of plan for North facing house
@Kiran kumar -thank you ☺
@thanulns , could you be bit more specific regarding optimum space utilisation
Regarding the use of south west odd dimensions , we wanted a green patch there ,so the architect has designed accordingly
Sc
@thanulns , could you be bit more specific regarding optimum space utilisation
Regarding the use of south west odd dimensions , we wanted a green patch there ,so the architect has designed accordingly
Sc
- ardesarchitects
- Posts: 1080
- Joined: June 20th, 2009, 2:12 pm
Re: Review of plan for North facing house
Hi Sc
The plan looks good in the first look, since the plot size is big you have much better options to explore .
My observations
1.Parking missing in the ground floor
2.gym room vs av room sizes are not matching to standards unless you are very serious about maintaining full zym equipment.Rather you can flip the rooms other wise
3. having a sky light above puja room is recommended since you have water body around it that would look fabulous when light falls on water .
4.Your internal garden in not is strategic location because it can be viewed only when you sit in the dinning room which is not even 15% of your life time compared to living room .
5.None of your bedrooms have garden view rather toilets has, which is not really an advatange of having such nice courtyard .
****All the above are my personal opinion they may or may not suite to your requirement so consider them only to required level
Regards ,
Ar.Praveen.N
Ardes Architects and Interior designers
ardesarchitects@gmail.com
https://www.facebook.com/ardes.architects
http://www.ardesarchitects.com
The plan looks good in the first look, since the plot size is big you have much better options to explore .
My observations
1.Parking missing in the ground floor
2.gym room vs av room sizes are not matching to standards unless you are very serious about maintaining full zym equipment.Rather you can flip the rooms other wise
3. having a sky light above puja room is recommended since you have water body around it that would look fabulous when light falls on water .
4.Your internal garden in not is strategic location because it can be viewed only when you sit in the dinning room which is not even 15% of your life time compared to living room .
5.None of your bedrooms have garden view rather toilets has, which is not really an advatange of having such nice courtyard .
****All the above are my personal opinion they may or may not suite to your requirement so consider them only to required level
Regards ,
Ar.Praveen.N
Ardes Architects and Interior designers
ardesarchitects@gmail.com
https://www.facebook.com/ardes.architects
http://www.ardesarchitects.com
Re: Review of plan for North facing house
Thank you @Praveen for the review , will surely discuss with the architect
1. Whole of ground floor is parking area , with small portion as servant waters
2. Gym has to be that size as full gym equipment is already been used in our previous house, so can't decrease it's size
3& 4 We would have preferred having pooja with the internal garden but since the size of garden will decrease we are not able to incorporate into it , any suggestions in regard to this would be welcome
5 We wanted the courtyard - front one in the north east , but since there is a huge tree and electric pole in front of the house, we can keep the gate opening and entry point of cars only in north east , hence shifted the front courtyard to north west
The master bedroom in southwest has a balcony opening to the courtyard in southwest
1. Whole of ground floor is parking area , with small portion as servant waters
2. Gym has to be that size as full gym equipment is already been used in our previous house, so can't decrease it's size
3& 4 We would have preferred having pooja with the internal garden but since the size of garden will decrease we are not able to incorporate into it , any suggestions in regard to this would be welcome
5 We wanted the courtyard - front one in the north east , but since there is a huge tree and electric pole in front of the house, we can keep the gate opening and entry point of cars only in north east , hence shifted the front courtyard to north west
The master bedroom in southwest has a balcony opening to the courtyard in southwest
Re: Review of plan for North facing house
We have finalised the plan for the house G+3. I have received material contract quote from the contractor. Pooja room , sky light, steps flooring, wood flooring for two rooms in 2nd floor and living area will be executed by another person . Members please review the quote and advise.
Re: Review of plan for North facing house
Third floor
- Attachments
-
- IMG_20161202_221818.jpg (162.4 KiB) Viewed 10508 times
Re: Review of plan for North facing house
Contactor quote, he is quoting 1650 for 45squares